Котел 700 кВт без дымососа на самотяге в Темиртау

Котел 700 кВт работающий без дымососа
Котел 700 кВт без дымососа
Котел 700 кВт без дымососа чертеж
Чертеж котла 700 кВт без дымососа
Водогрейный котел 700 кВт работающий без дымососа
Водогрейный котел 700 кВт без дымососа
Изготовление котла 700 кВт работающего без дымососа
Изготовление котла 700 кВт без дымососа
Изготовление котлов 700 кВт работающих без дымососа
Изготовление котлов 700 кВт без дымососа
Производство котлов 700 кВт работающих без дымососа
Производство котлов 700 кВт без дымососа
Котел 700 кВт работающий без дымососа
Котел 700 кВт без дымососа чертеж
Водогрейный котел 700 кВт работающий без дымососа
Изготовление котла 700 кВт работающего без дымососа
Изготовление котлов 700 кВт работающих без дымососа
Производство котлов 700 кВт работающих без дымососа
Цена
4 481 200 ₸
От 4 481 200 ₸ с доставкой до г.
Логотип WhatsApp Связаться
по WhatsApp
  • Работает без дымососа на естественной тяге
  • Дутье и тяга регулируются шиберами
  • Развитая поверхность нагрева обеспечивает высокий КПД
  • Легкий выход котла на номинальную мощность даже при плюсовой температуре
  • Надежная работа котла обеспечивается изготовлением трубной системы из трубы сталь 10-20 повышенной прочности

Технические характеристики

МаркаКотел 700 кВт без дымососа
ВидВодогрейный
Тип отопительного котлаТвердотопливный
БрендHEATEXPERT
ТипКотел КВр
Вид топкиРучная, Колосники
Максимальная тепловая мощность0.7 МВт
Максимальная тепловая мощность700 кВт
Максимальная тепловая мощность0.6 Гкал
Диапазон регулирования мощности50-100 %
ТопливоТвердое, Уголь
Низшая теплота сгорания проектного топлива5230 кКал/кг
КПД котла на УГЛЕ, не менее80 %
Расход УГЛЯ среднечасовой за отопительный сезон81 кг/ч
Расход УГЛЯ при максимальной нагрузке котла141.8 кг/ч
Расход условного топлива106 кг/ч
Минимальная температура воды на входе в котел55 °С
Максимальная температура воды на выходе из котла115 °С
Давление воды, не более0.3-0.6 (3-6) МПа (кгс/см²)
Номинальный расход теплоносителя24 м³/ч
Расход теплоносителя через котел min-max18-30 м³/ч
Гидравлическое сопротивление при номинальном расходене более 0.07 (0.7) МПа (кгс/см²)
Аэродинамическое сопротивление300 (30.59) Па (мм. вод. ст.)
Разряжение в топочной камере20-40 (2-4) Па (мм. вод. ст.)
Объем уходящих газов3000 м³/ч
Температура уходящих газов220 °С
ТягаЕстественная
Водяной объем котла570 л
Объем топочной камеры1.76 м³
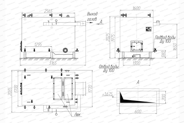
Размер топочной камеры, длина*ширина*высота1225х960х1500 мм
Активная площадь решетки горения1.2 м²
Присоединительные размеры по водяному тракту80 Ду
Присоединительные размеры газохода уходящих газов, ширина*высота / сечение600х200 / 0.12 мм/м²
Габаритные размеры котла, длина*ширина*высота3000х2000х2150 мм
Масса2300 кг
Конструкция котлаВодотрубная
Количество контуровОдноконтурный
РазмещениеНапольный
Тип камеры сгоранияОткрытый
УправлениеЭлектронное
Принцип работы твердотопливного котлаКлассический
ЭнергонезависимыйНет
Тип питанияТрехфазное
Встроенный циркуляционный насосНет
Встроенный расширительный бакНет
ЭнергоэффективностьВысокая
Отапливаемая площадьот 5400 до 7700 м²
Отапливаемый объемот 16000 до 23000 м³
Размеры корпуса котла, длина*ширина*высота мм

Твердотопливный котел 700 кВт с естественной тягой в Темиртау

Водогрейный котел на самотяге мощностью 700 кВт работает на каменном и буром угле без дымососа. Угольный котел применяется для отопления и горячего водоснабжения маленьких и больших помещений и зданий. Нагревает воду температурой до 115 °С и давлением 0,3-0,6 МПа. Используется в котельных с ручными топками.

Промышленный водонагревательный котел 700 кВт на естественной тяге работает без дымососа, что снижает энергозатраты в отопительный сезон. Высокий КПД котла 80% достигается благодаря большой поверхности нагрева. Особенность конструкции заключается в специальной системе тяги и дутья, которую обеспечивает дымовая труба и вентилятор. Даже при плюсовой температуре наружного воздуха, агрегат без труда выходит на номинальную мощность. При этом дым не выбивается в котельную и конденсат поверхностей нагрева исключен.

Принцип работы котла 700 кВт на естественной тяге

Тяга в отопительном котле без дымососа 700 кВт создается за счет высоты дымовой трубы 18 метров и разности температур наружного воздуха с дымовыми газами. В зимний период тяга легко устанавливается. Но, в начале отопительного сезона, когда температуры не сильно различаются, необходимо разогреть дымовую трубу. Для этого часть горячих газов пускается через обводной газоход. После прогрева трубы устанавливается стабильная тяга, перекрывается газоход, котел выходит на максимальный КПД.

Конструкция котла 700 кВт без дымососа

Промышленный отопительный котел без дымососа 700 кВт состоит из топочной и конвективной частей.

Топочная часть. Топка выполнена в газоплотном исполнении для исключения присосов холодного воздуха.

Горение происходит на колосниковой, либо водоохлаждаемой решетке. Топливо укладывается ровным слоем, не более 200 мм.

Колосниковая топка собирается из чугунных колосников с щелевидными отверстиями. Отверстия необходимы для провала золы в зольный короб и подачи воздуха для горения. Воздух подается при помощи вентилятора, либо за счет естественной тяги.

Водоохлаждаемая камера состоит из труб с проходящей по ним водой. Вода охлаждает конструкцию, исключает перегрев и прогорание колосников. Отверстия небольшого диаметра располагаются по всей поверхности колосников для равномерной подачи воздуха в слой топлива. Размер отверстий препятствует провалу не догоревшего топлива. Топливо находится в топке до полного выгорания.

Конвективная часть. Конвективная поверхность водотрубного котла 700 кВт на естественной тяге выполнена из плотных регистров, вставленных друг в друга в шахматном порядке. Это обеспечивает значительную нагревательную площадь и высокий коэффициент передачи тепла. В связи с этим горячие дымовые газы подвергаются охлаждению до 180-200 °С.

Котельный блок. Водогрейный котел 700 кВт на самотяге для отопления изготавливается из труб обшитых теплоизоляцией и стальными листами. Для очистки конвективных пакетов имеются люки. Чистка зольного короба производится через дверку. Обводной газоход устанавливается сбоку вверху топочной камеры и присоединяется в газоход за котлом.

Комплект поставки

Стационарный напольный котел 700 кВт с естественной тягой включает базовую комплектацию. В состав базовой комплектации входит: вентилятор поддува, клапаны, вентили, манометры, термометры, трехходовые краны.

Дополнительная комплектация

  • циркуляционный насос - обеспечивает циркуляцию воды в котлоагрегате;
  • подпиточный насос – позволяет пополнять объем теплоносителя в контуре;
  • дымовая труба – создает тягу, удаляет дымовые газы от котла за пределы помещения и рассеивает их в атмосфере. Подбирается по техзаданию.

Купить котел 700 кВт на естественной тяге

Для того, что бы купить котел 700 кВт работающий без дымососа на самотяге в Темиртау вы можете сделать заявку по телефону +7-7172-69-59-73, либо оформить заявку онлайн. Менеджеры дадут консультацию по подбору вспомогательного оборудования для выбранных вами моделей и рассчитают стоимость доставки. Транспортирование котлоагрегата и вспомогательного оборудования до объекта осуществляется автомобильным транспортом.

Комплект поставки

Вентилятор
Вентилятор 2 с дв. 2,2/3000
1 штука
Затвор Ду 80
Затвор Ду 80
2 штуки
Колосники котлов
Колосник 840x220
5 штук
Клапан предохранительный Ду 50
Клапан Ду 50
1 штука
Клапан обратный
Клапан обратный
1 штука
Манометр МП 160
Манометр МП 160
2 штуки
Кран трехходовой ДУ 15
Кран Ду 15
2 штуки
Термометр ТТЖО
Термометр ТТЖО
2 штуки
Оправа термометра ОПТ
Оправа ОПТ
2 штуки
Вентиль Ду 15
Вентиль Ду 15
4 штуки
Вентиль Ду 20
Вентиль Ду 20
9 штук

Дополнительно потребуется

Насос К консольный
К 65-50-160
Цена 436 258 тг.
Насос К консольный
К 50-32-125
Цена 313 025 тг.
Насос TD
Насос TD40-36G2 (5.5 кВт)
Цена 1 447 164 тг.
Насос CHL
Насос CHL4-40 (0.75 кВт)
Цена 378 925 тг.

Похожая продукция

Сертификаты товара

Сертификат на водогрейные котлы на твердом и жидком топливе
Сертификат на водогрейные котлы на твердом топливе

Собственное производство

Котельный завод производит
  • Паровые котлы от 300 кг до 2.5 тонны пара в час
  • Промышленные водогрейные котлы от 150 КВт до 4 МВт на всех видах топлива
  • Механические топки ТШПМ, шурующая планка и ТЛПХ, ленточное полотно прямого хода
  • Циклоны для очистки воздуха и дымовых газов для производств и промышленных отраслей
  • Транспортеры и системы топливоподачи и шлакоудаления
Подробнее о производстве
Собственное производство
Смотреть видео
с производства